7 King Street, Richmond, North Yorkshire, DL10 4HP

About the property
Gallery
Property details
EPC
Floor plan
Map
Westfields,, Richmond
Richmond
Offers over £ 495,000
House - Semi-Detached.
3 2

Contact us

Contact our team

01748 822 711

Contact us

About the property
Welcome to this charming semi-detached house located in the sought-after area of Westfields, Richmond. This spacious property boasts 3 double bedrooms and 2 shower rooms, making it an ideal choice for a growing family.

One of the standout features of this home is the ample parking space available for multiple vehicles, ensuring convenience for you and your guests.

The property offers lovely countryside views, providing a peaceful and picturesque setting for you to enjoy. Additionally, the inclusion of solar panels not only helps reduce your carbon footprint but also saves you money on energy bills.

Situated on a large plot, this house offers plenty of outdoor space for children to play, pets to roam, or for you to simply relax and unwind in your own private oasis. This large family home is perfect for creating lasting memories with your loved ones.

Don't miss out on the opportunity to own this wonderful property in a prime location. Contact us today to arrange a viewing and make this house your new home!
Gallery
Full property details
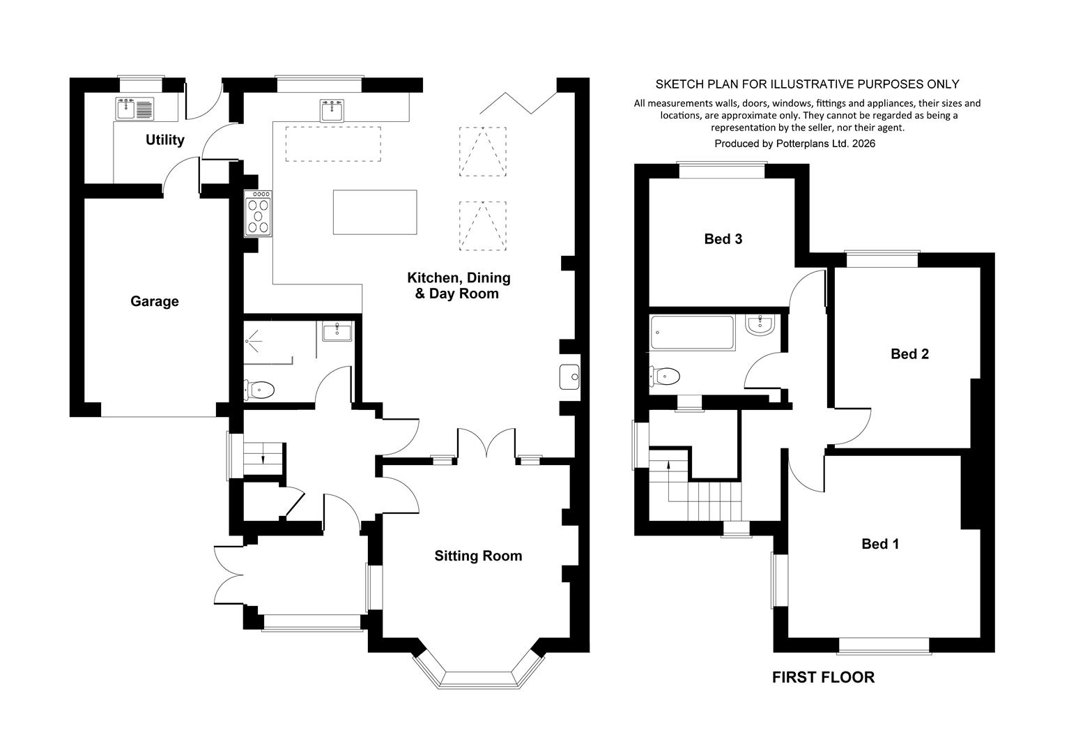
ENTRANCE PORCH
With quarry tiled flooring, Windows to the front and side and door leading into the hallway.
HALLWAY
With pine feature flooring, half wooden panelled walls, original oak staircase leading to the first floor with double glazed window to the side and under the stairs storage cupboard beneath.
LOUNGE
4.57 x 4.30 (14'11" x 14'1")
At the front with a large double glazed bay window with lovely views, Dik Geurts multi fuel stove with tiled hearth, brick insert and period style wooden surround. Central heating radiator, tv aerial point, coving and picture rail.
DINING ROOM
5.32 x 4.31 (17'5" x 14'1")
At the rear with a Dik Geurts multi fuel stove with brick insert and wooden mantel, wooden flooring, central heating radiator, picture rail, coving, tv aerial point and a double glazed window looking onto the rear garden.
DOWNSTAIRS SHOWER ROOM
2.78 x 2.11 (9'1" x 6'11")
With a double shower cubicle, w.c, wash hand basin set in a vanity unit with cupboard beneath and tiled splash back, wooden effect flooring, towel radiator, double glazed window with obscured glass and cupboard with a folding door housing the central heating combi boiler,
KITCHEN BREAKFAST ROOM
5.53 x 2.97 (18'1" x 9'8")
At the rear with a range of wall, base and drawer units, Zanussi double tower oven, Zanussi hob, extractor fan, integrated fridge and freezer, one and a half bowl sink unit with mixer tap over, tiled splash back, plumbing for a washing machine, wooden effect flooring, central heating radiator and double glazed windows. a door leads into the sun room.
SUNROOM
3.40 x 2.43 (11'1" x 7'11")
Having a quarry tiled floor with under floor heating, double glazed windows to the sides and rear. spot lights, wall light and double glazed door leading out to the rear garden.
FIRST FLOOR
The original oak staircase leads to the first floor which has a feature porthole window to the front, loft hatch with loft ladder providing access into the loft space. Door lead into the three bedroom and family bathroom.
BEDROOM 1.
4.56 x 4.28 (14'11" x 14'0")
A spacious double bedroom at the front with a large bay double glazed window with far reaching views, picture rail and central heating radiator.
BEDROOM 2.
3.92 x 3.85 (12'10" x 12'7")
A double bedroom at the rear with double glazed window, fitted robes, central heating radiator and a dado rail.
BEDROOM 3.
3.09 x 3.05 (10'1" x 10'0")
A double bedroom at the rear with a double glazed window, central heating radiator and a picture rail.
FAMILY SHOWER ROOM
2.62 x 1.84 (8'7" x 6'0")
Having a large double shower, wash hand basin in a vanity unit with tiled splash back, w.c, towel radiator, spot lights and double glazed window to the side with obscured glass.
EXTERNALLY
The front of the property has fantastic views, the garden is well stocked with mature tree and shrubs and there is a large driveway providing off road car parking for multiple vehicles.

The rear garden is enclosed and is well stocked with mature shrubs, trees, fruit trees, ornamental trees, ornamental pond, patio area, greenhouse and external cold water tap.
DETACHED GARAGE / WORKSHOP
5.78 x 5.02 (18'11" x 16'5")
A large detached garage and workshop with up and over door, power and lighting, single glazed window and door to the front. The solar panels are on the garage roof.
EXTERNAL W.C AND TOOL STORE
Brick built with an external w.c and separate tool store.
NOTES
* FREEHOLD
* COUNCIL TAX BAND E
* SOLAR PANELS
* GAS CENTRAL HEATING
Energy performance certificates
Floor plan

Map

Take a look

Featured properties

About Marcus Alderson

If you’re looking to sell your home, we offer a fast, free and efficient market appraisal service. With well over 80 years experience in estate agency and extensive local knowledge, we pride ourselves on making honest and accurate market valuations, and we have the track record to prove it!

Contact

Sign up for our latest news

Copyright 2025 © Marcus Anderson Estate Agents | Design and Build by In Studio