7 King Street, Richmond, North Yorkshire, DL10 4HP

About the property
Gallery
Property details
EPC
Floor plan
Map
Ronaldshay Drive, Richmond
Richmond
Asking price £ 269,950
House with Annexe.
3

Contact us

Contact our team

01748 822 711

Contact us

About the property
Situated within easy reach of local amenities, Ronaldshay Drive in Richmond, this well presented semi-detached house offers an ideal family home in a cul-de-sac positioning. With three well-proportioned bedrooms, the property provides ample space for comfortable living. The interior boasts spacious accommodation, allowing for a seamless flow between rooms, perfect for both relaxation and entertaining.

One of the standout features of this home is the additional annex, which presents a versatile opportunity for multi-purpose use. Whether you envision it as a home office, a guest suite, or a playroom, the annex adds significant value and flexibility to the property.

Residents will find everything they need within easy reach, from shops to schools and parks. This delightful home combines modern living with practicality, making it a perfect choice for families. Don't miss the chance to make this exceptional property your own.
Gallery
Full property details
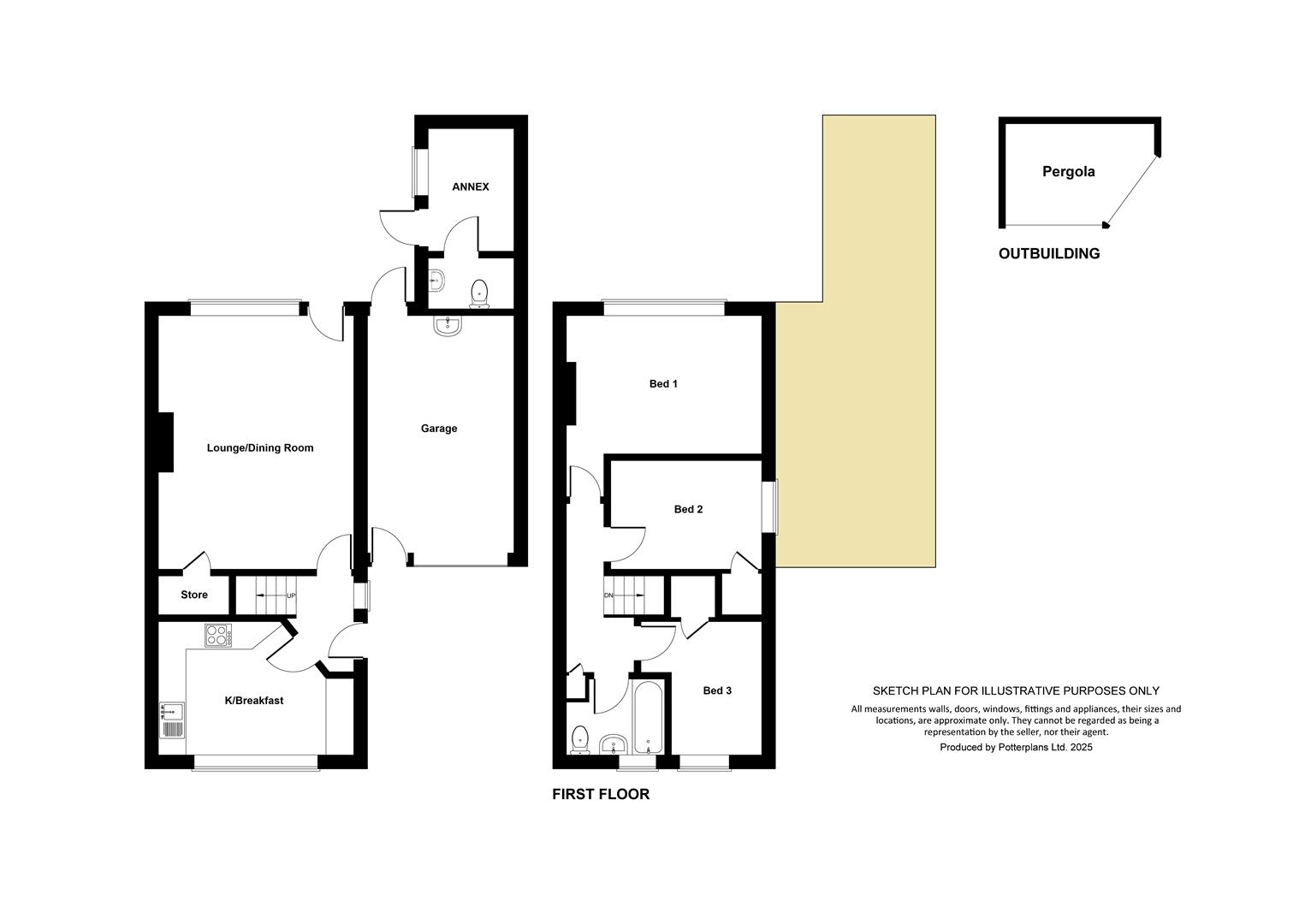
ENTRANCE RECEPTION
Bespoke canopy with UPVC coating and welcome light, solid Oak bespoke door with wrought iron door furniture and bespoke stain glass window to left of door, leading into entrance reception. Feature tiled floor, stair case to first floor, solid Oak doors to; lounge/dining room and kitchen/breakfast room. Central heating radiator and ceiling light.
LOUNGE/DINING ROOM
5.26m x 4.24m (17'3" x 13'10")
UPVC picture window and UPVC door to rear enjoying views of the rear garden. Feature brick fireplace with floating Oak mantle and brick hearth having recess for a stove etc (currently there is nothing in place). TV point, ceiling coving and central heating radiator. Pine door to under-stairs store.
KITCHEN/BREAKFAST ROOM
4.23m x 2.68m (13'10" x 8'9")
Fitted with an Oak fronted kitchen, having base, drawer and wall units with granite worktop surfaces. Recessed area for microwave, tiling to walls, electric cooker point, under counter lighting, porcelain period style sink with brass taps, plastic ceiling cladding, twin pantry cupboard with centre void (ideal location for fridge/freezer). UPVC picture window to front opening the room with natural light, central heating radiator and feature floor.
FIRST FLOOR LANDING
Central heating radiator, loft hatch with pull down ladders leading to the loft void which is fully boarded with power and pressurised tank unit. Built in linen cupboard. Oak doors to bedrooms and bathroom/w.c.
BEDROOM 1.
4.27m x 3.00m (14'0" x 9'10")
UPVC window to rear, central heating radiator and void for wardrobes.
BEDROOM 2.
3.36m x 2.23m (11'0" x 7'3")
UPVC window to side, central heating radiator, Pine door to wardrobe with shelving.
BEDROOM 3.
2.66m x 2.15m min (8'8" x 7'0" min)
UPVC window to front, central heating radiator and useful over stairs built in storage cupboard.
BATHROOM/W.C
2.04m x 1.80m (6'8" x 5'10")
Stylish suite comprising; panelled bath with wall mounted shower and rainfall shower head, pedestal hand basin, low level w.c, tiling to part walls, chrome ladder towel rail and central heating radiator, wood panelling to part walls with useful cupboard having shelving. Extractor fan, wood effect tiled floor, UPVC window to front.
EXTERNALLY
To the front of the property is a driveway for extensive parking with paved seating area, lawned garden and further paved area for a vehicle.

To the rear of the property to a delightful PRIVATE garden with paved seating area, bespoke brick coal bunker, pebbled path with lavender borders leading to a further paved seating area. Neat lawn with stone stepping stones leading to a beautiful Indian stone patio area with handmade canopy ideal for entertaining and enjoying summer evenings. Flower border, useful shed with power, bespoke log store.
GARAGE
5.15m x 3.18m (16'10" x 10'5")
Single garage with electric roller door and a side personnel door, extensive supply of power points, sink, work bench, storage within the roof area. WORCESTER BOILER. Door leading to rear garden.
ANNEX
3.88m x 1.85m overall (12'8" x 6'0" overall)
A self contained annex built in 2005. A multi-functional room:
MAIN AREA
2.66m x 1.85m (8'8" x 6'0")
UPVC door leading into the main area having UPVC window to side. Power points, ceiling light, tiled floor, central heating radiator, loft hatch and door to cloaks/utility area.
CLOAKS/UTILITY AREA
1.84m x 1.10m (6'0" x 3'7")
Low level w.c, hand basin with tiling to splash areas, electric water heater, plumbing for automatic washing machine. Wall mounted units, tiling to walls and UPVC window to side.
Energy performance certificates
Floor plan

Map

Take a look

Featured properties

About Marcus Alderson

If you’re looking to sell your home, we offer a fast, free and efficient market appraisal service. With well over 80 years experience in estate agency and extensive local knowledge, we pride ourselves on making honest and accurate market valuations, and we have the track record to prove it!

Contact

Sign up for our latest news

Copyright 2025 © Marcus Anderson Estate Agents | Design and Build by In Studio