
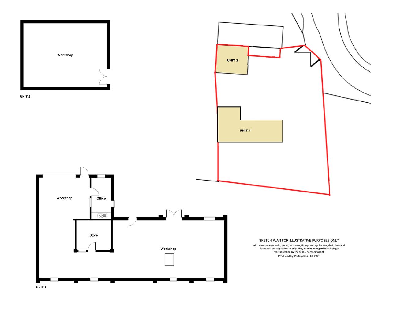
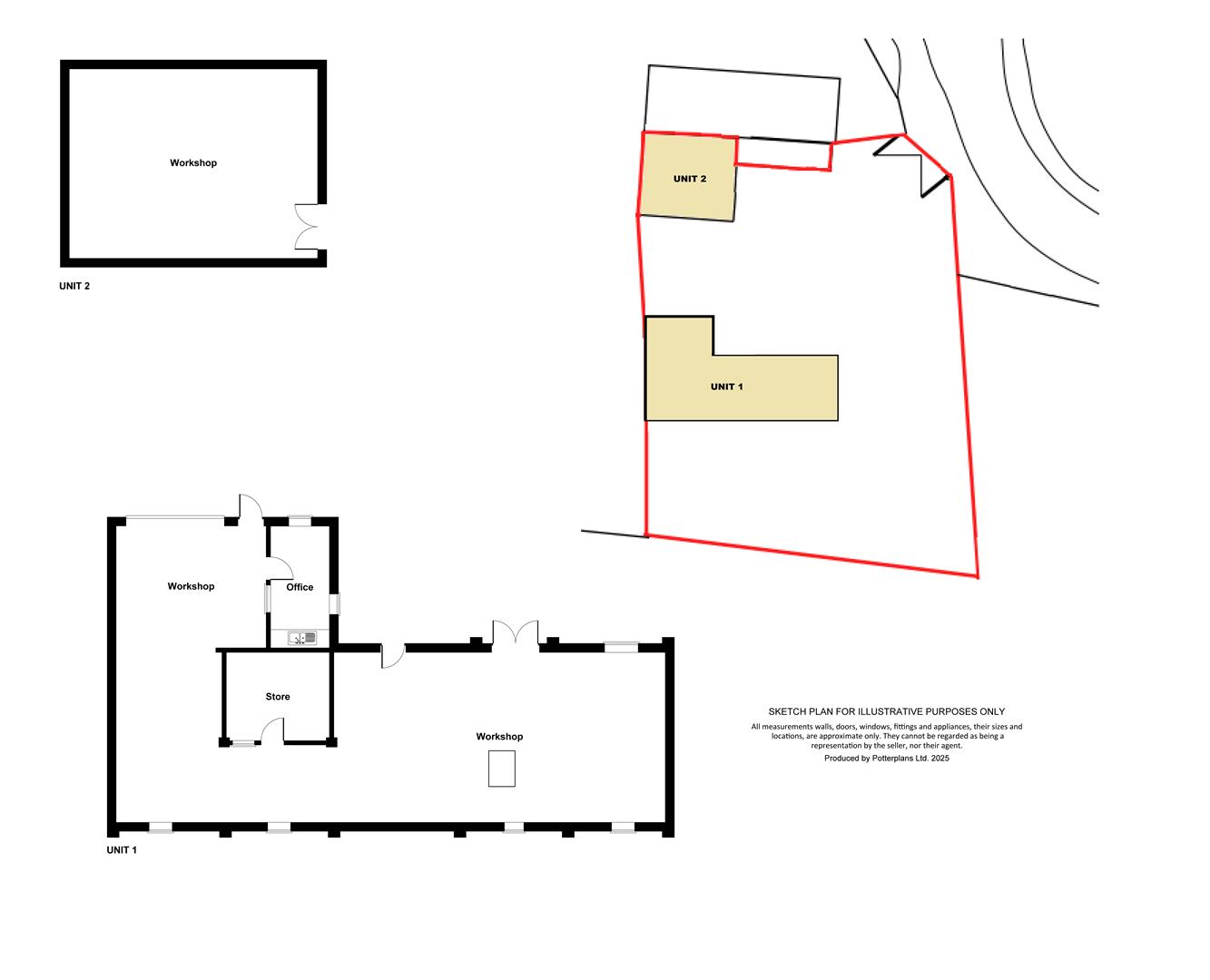
Take a look
Character Property. |
Moor Road, Bellerby, Leyburn |
Leyburn 4 2 3 |
£ 650,000 |
For Sale |
House - Semi-Detached. |
Ducket Close, Richmond |
Richmond 2 1 |
£ 220,000 |
For Sale |
Character Property. |
Reeth, Richmond |
Richmond 3 1 |
Offers over £ 325,000 |
For Sale |
House - Detached. |
The Avenue, Richmond |
Richmond 4 2 2 |
£ 559,950 |
For Sale |
About Marcus Alderson
If you’re looking to sell your home, we offer a fast, free and efficient market appraisal service. With well over 80 years experience in estate agency and extensive local knowledge, we pride ourselves on making honest and accurate market valuations, and we have the track record to prove it!
Contact
Sign up for our latest news
Navigation
Copyright 2025 © Marcus Anderson Estate Agents | Design and Build by In Studio