7 King Street, Richmond, North Yorkshire, DL10 4HP

About the property
Gallery
Property details
EPC
Floor plan
Map
Brokes, Hudswell, Richmond
Richmond
Offers over £ 350,000
Barn Conversion.
3 2 2

Contact us

Contact our team

01748 822 711

Contact us

About the property
2 (TWO) UNIQUE & VERY DESIRABLE Single-Storey BARN CONVERSIONS & 5.61m x 4.78m (18'4" x 15'8") WORKSHOP Etc BUILDING (Cavity-wall), Large Courtyard, Carport & Stunning VIEWS. Suit Variety of uses: LIVE-WORK Opportunity, HOME with ANNEX ACCOMMODATION or HOLDAY LET etc.

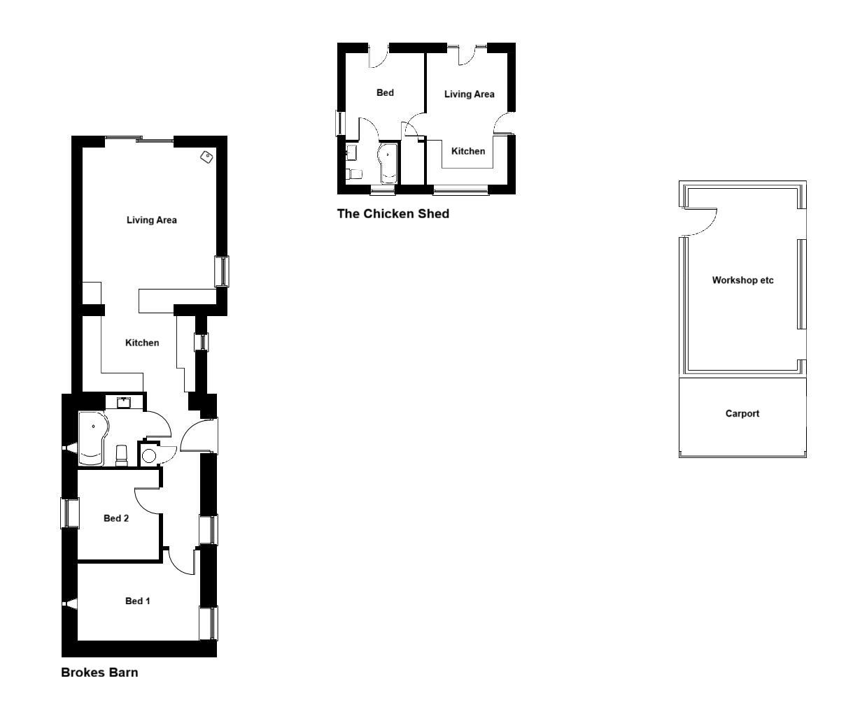
**BROKES BARN (Barn 1): Lovely Vaulted 8.39m x 4.14m max (27'6" x 13'6") KITCHEN, DINING & LIVING ROOM, 2 BEDROOMS & BATH/SHOWER ROOM.

**The CHICKEN SHED (Barn 2): LIVING-KITCHEN, Double BEDROOM with En-Suite BATH/SHOWER ROOM & En-Suite ROBE-STORE.

The Properties overlook open countryside & farmland, just 1.5 miles from historic RICHMOND, excellent access to the & the A1(M) & A66 Trans Pennine Route at Scotch Corner, about 6 miles. Mainline station at DARLINGTON about 15 miles - LONDON Kings Cross circa 2 hours 20 minutes. The unspoilt Yorkshire Dales National Park is on the doorstep.
Gallery
Full property details
BROKES BARN
HALL
Built-in cupboard with hot-water cylinder. Truss beam ceiling & recessed double-glazed window to front.
KITCHEN, DINING & LIVING ROOM
8.39m x 4.14m max (27'6" x 13'6" max)
Part-vaulted with down-lighting & comprising:
KITCHEN & DINING AREA
Fitted with wall & floor units including rotary unit with worktops & inset twin bowl sink; integrated Bosch electric oven, ceramic hob with extractor over, microwave, fridge & freezer, dishwasher & washing machine. Drinks bar unit & breakfast bar. Recessed chamfered window to front & open to:
LIVING AREA (VIEWS)
Multi-fuel stove, recessed double-glazed windows to front & rear, & double-glazed patio doors to rear with great views.
INNER HALL
BEDROOM 1.
3.84m x 2.29m min (12'7" x 7'6" min)
Vaulted truss beam ceiling & recessed double-glazed windows to front & rear.
BEDROOM 2.
2.79m x 2.77m (9'1" x 9'1")
Truss beam ceiling & recessed double-glazed window to rear.
BATH/SHOWER ROOM
2.36m max (1.83m) x 2.15m max (7'8" max (6'0") x 7
Panelled bath with bar shower over, recess & inset washbasin with drawers under & WC. Recessed chamfered double-glazed window to rear.
THE CHICKEN SHED
LIVING-KITCHEN (VIEWS)
4.78m min x 3.25m (15'8" min x 10'7")
Wall & floor units with worktops, inset sink & electric oven with ceramic hob, integrated fridge & dishwasher. Part Oak flooring & open to Living Area with moulded ceiling relief & down-lighting, display shelving & contemporary electric fire. 2 recessed chamfered double-glazed windows to front & double-glazed door with side screens to rear with great views. Door to:
Double BEDROOM (VIEWS)
3.32m x 3.20m (10'10" x 10'5")
Moulded ceiling relief, double-glazed chamfered side window & door to rear with great views. Doors to:
EN-SUITE BATH/SHOWER ROOM
2.01m x 1.47m (6'7" x 4'9")
Panelled bath with Mira shower over, inset washbasin with cupboards & inset WC. Travertine style tiling & double-glazed chamfered front window.
EN-SUITE WARDROBE
1.35m x 1.17m (4'5" x 3'10")
Walk-in wardrobe with light point.
OUTSIDE
Stone boundary wall to extensive courtyard parking area, rear & side sitting areas &:
WORKSHOP Etc BUILDING
5.61m x 4.78m (18'4" x 15'8")
Cavity-wall built with double-glazed window to rear – Great views, & 2 openings to side.
Adjoining CARPORT
4.81m x 2.81m (15'9" x 9'2")
NOTES
(1) Freehold
(2) Mains Water, Electricity & Septic Tank Drainage
(3) Council Tax Band: Brokes Barn: B & The Chicken Shed: TBC
(4) EPC: Brokes Barn: 51-E & The Chicken Shed: TBC
(5) Electric Heating & Double-glazing
Energy performance certificates
Floor plan
Map

Take a look

Featured properties

About Marcus Alderson

If you’re looking to sell your home, we offer a fast, free and efficient market appraisal service. With well over 80 years experience in estate agency and extensive local knowledge, we pride ourselves on making honest and accurate market valuations, and we have the track record to prove it!

Contact

Sign up for our latest news

Copyright 2025 © Marcus Anderson Estate Agents | Design and Build by In Studio