7 King Street, Richmond, North Yorkshire, DL10 4HP

About the property
Gallery
Property details
EPC
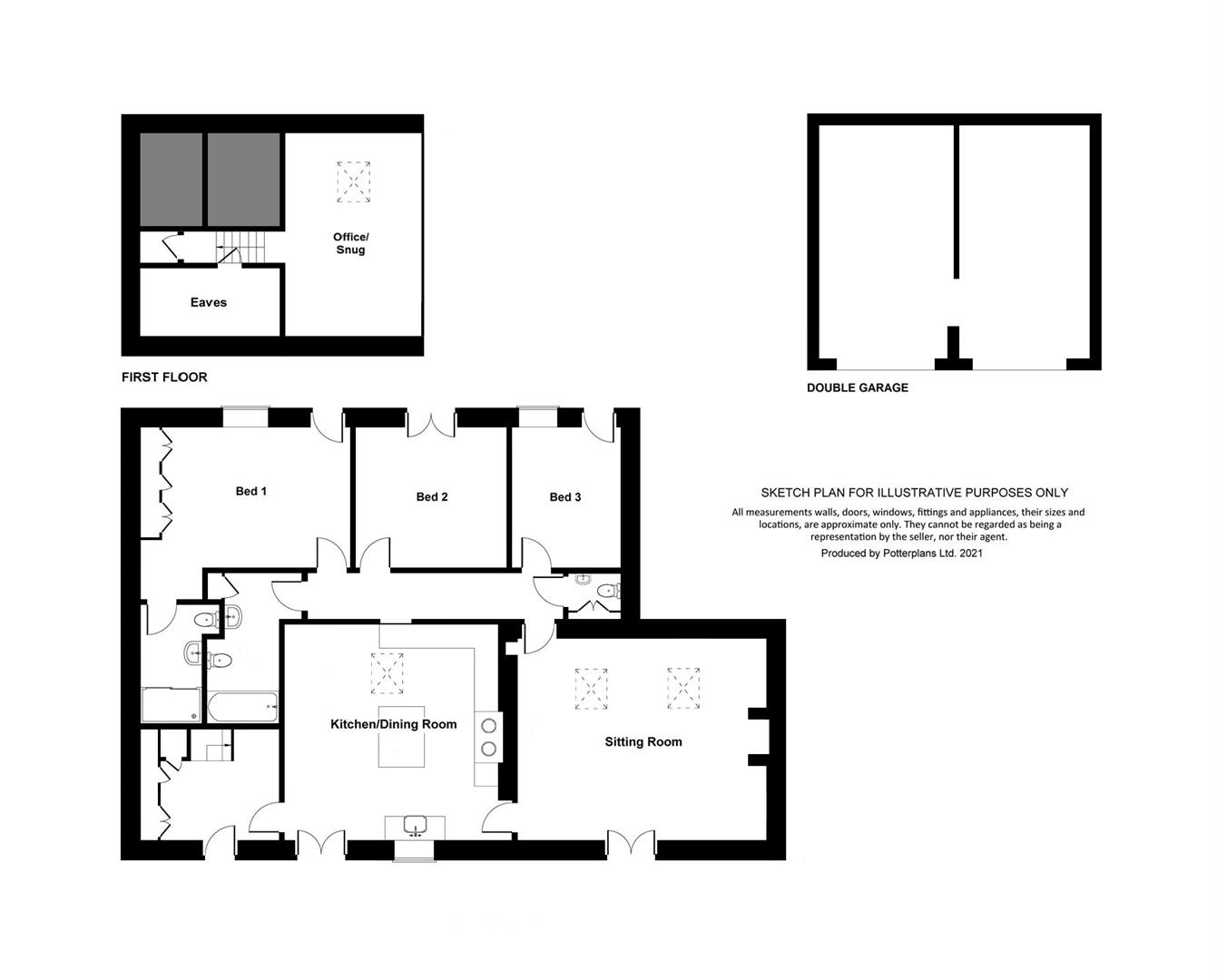
Floor plan
Map
5 Carlton Green Farm, Richmond
Richmond
£ 499,950
Barn Conversion.
3 2 1

Contact us

Contact our team

01748 822 711

Contact us

About the property
FABULOUS CONVERSION, FABULOUS SETTING & GREAT VIEWS: Character Home (About 139sqm/1,500sqft) updated by the current owners* with showstopping KITCHEN & DINING ROOM, gorgeous SITTING ROOM, Hideaway Galleried OFFICE/SNUG, large HALL & separate WC; 3 good BEDROOMS, BATH/SHOWER ROOM & EN SUITE. Wonderful Enclosed GARDENS & Al Fresco PATIO GARDEN; large 7.78m/25'6" DOUBLE GARAGE & PARKING for several cars. VERY HIGHLY RECOMMENDED & For Sale with No ONWARD CHAIN.

* New Kitchen, 2 electric boilers, new en suite, Solar Panels, …

Historic RICHMOND about 9 miles, BARNARD CASTLE 12 & Mainline Rail Station about 8 miles (LONDON Kings Cross about 2 hours 20 minutes); A66 about 5 miles & A1(M) at
Scotch Corner about 7 miles. The unspoilt Teesdale countryside (Area of Outstanding Natural Beauty) & the Yorkshire Dales National Park are readily accessible.
Gallery
Full property details
RECEPTION HALL
3.46m x 2.44m (11'4" x 8'0")
Including built-in storage & coats cupboards, & cupboard with plumbing for washing machine & space for dryer. Oak flooring & staircase to hideaway GALLERIED OFFICE/SNUG (See below).
‘2022’ KITCHEN & DINING ROOM
5.40m x 4.78m (17'8" x 15'8" )
A showstopper with vaulted truss ceilings & fitted with a range of under-lit wall & floor units including pull-out ‘larder’ unit. Onyx worktops, Belfast sink, & breakfast island with integrated wine cooler. Recessed electric Aga, integrated electric oven & ceramic hob with extractor over, integrated microwave & dishwasher. Oak flooring, recessed double glazed window to front, roof light, double doors opening into the garden & doorway to:
Gorgeous SITTING ROOM
5.70m x 4.74m (18'8" x 15'6")
Vaulted truss ceiling & Oak flooring. Large fireplace with stove & flagged hearth, fitted cupboards, shelving & nook. Recessed double glazed window to front, roof lights & double doors opening into the garden.
INNER HALL
6.27m x 1.15m (20'6" x 3'9")
Vaulted truss ceiling, Oak flooring & shelved recess.
CLOAKS/WC
Washbasin, inset WC & shallow cupboard.
BEDROOM 1.
5.25m x 3.53m min (17'2" x 11'6" min)
Including fitted wardrobes & drawers, vaulted truss ceiling & over-head storage. Recessed double glazed window to rear & door opening into the patio garden.
EN SUITE SHOWER ROOM
2.75m x (2.00m max) 1.53m min (9'0" x (6'6" max) 5
Full-width drench shower, vanity washbasin with drawers & WC. Vaulted truss ceiling with roof light, Oak flooring & towel radiator.
BEDROOM 2.
3.76m x 3.56m (12'4" x 11'8")
.Vaulted truss ceiling & Oak flooring. Double doors opening into the patio garden.
BEDROOM 3.
3.36m x 2.75m (11'0" x 9'0")
Oak flooring, recessed double glazed window to rear & door opening into the patio garden.
Large BATH/SHOWER ROOM
3.58m x 1.78m min (11'8" x 5'10" min)
Panelled bath with shower over, ‘floating’ washbasin & inset WC. Built-in cupboard, Oak flooring, roof light & towel radiator.
FIRST FLOOR
Staircase (with 2 doors to eaves storage areas) to:
Hideaway Galleried OFFICE/SNUG
3.21m plus eaves x 2.30m (10'6" plus eaves x 7'6")
GALLERIED OFFICE/SNUG A lovely hideaway area with truss beams & roof light.
OUTSIDE FRONT
Parking for up to 3-4 cars & driveway leading to:
Large DOUBLE GARAGE
7.78m x 5.86m overall (25'6" x 19'2" overall)
Twin up & over doors, fitted shelving, light & power.
Lovely FRONT GARDEN
Capped stone boundary wall with gate to WEST facing lawned garden with established flower/shrub borders, stone flagged patio, outside light & cold water tap.
Al Fresco REAR PATIO GARDEN
Screened & stone flagged with decked pergola, covered BBQ area, raised stone flower/shrub border, outside light, outside power socket & cold water tap. NB: Barnfield has a right of way for access from the rear.
NOTES
(1) 16 Solar Panels & Electric Central Heating system
(2) Shared driveway maintenance charges between 6 dwellings - 16.67% each.
(3) Council Tax Band: E
(4) EPC: The current certificate record a 60-D rating, recommending photovoltaic solar panels - the current owners have since installed 16 solar panels.
(5) NB: Barnfield Croft has a right of way for access from/to the rear.
Energy performance certificates
Floor plan

Map

Take a look

Featured properties

About Marcus Alderson

If you’re looking to sell your home, we offer a fast, free and efficient market appraisal service. With well over 80 years experience in estate agency and extensive local knowledge, we pride ourselves on making honest and accurate market valuations, and we have the track record to prove it!

Contact

Sign up for our latest news

Copyright 2025 © Marcus Anderson Estate Agents | Design and Build by In Studio