7 King Street, Richmond, North Yorkshire, DL10 4HP

About the property
Gallery
Property details
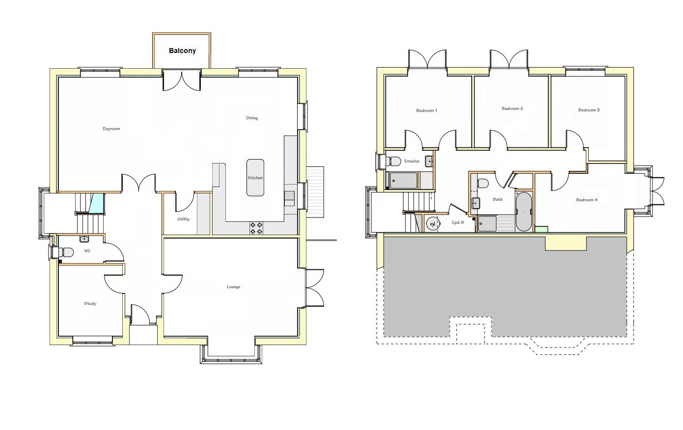
Floor plan
Map
Tunstall, Richmond
Richmond
£ 795,000
House - Detached.
5 3 2

Contact us

Contact our team

01748 822 711

Contact us

About the property
STUNNING INDIVIDUALLY DESIGNED NEW HOME (246sqm/2,648sqft) with Landscaped Gardens & Grounds, & Elevated Grazing Land VIEWS. Superb 8.08m (26'6") Equipped KITCHEN/DINING & DAY ROOM, SITTING ROOM, OFFICE, Open Vaulted RECEPTION HALL & WASHROOM/WC; Up to 5 Double BEDROOMS (BED 2: 8.61m x 5.00m max/28'2" x 16'4" & BED 3: 4.90m min x 4.06m/16'0" x 13'4" (Ideal ANNEX or TEENAGERS/GUEST SUITE or GYM, WORKSPACE etc), 2 'House' BATH/SHOWER ROOMS, EN-SUITE SHOWER & ROBES to Master Bedroom. 'B' Energy Rated.
Wonderful Landscaped GARDENS & TERRACES with VIEWS – great for entertaining. Multi-vehicle PARKING & EV charging point. Air Source Central Heating with Under-floor Heating (Radiators to ground & upper floors) & full UPVC Double-Glazing. A FANTASTIC HOME & Very Highly Recommended.

The village has its own pub (The Bay Horse Inn) & is surrounded by undulating open countryside. There is excellent commuter access: A1(M) Motorway (about 3 miles), Scotch Corner & the Cross-Pennines A66 (just over 7 miles). Mainline rail stations at Northallerton & Darlington about 13 & 16 miles – LONDON, Kings Cross about 2 hours 20 minutes. Historic Richmond about 6 miles.
Gallery
Full property details
GROUND FLOOR
7.74m x 5.86m (25'4" x 19'2")
HALL
5.73m long & 3.58m wide max (18'9" long & 11'8" wi
Light-filled with an Oak & glazed balustrade staircase to LOWER & UPPER FLOORS. Built-in coats cupboard. Windows to front & side.
WASHROOM/WC
1.70m x 1.60m (5'6" x 5'2")
Contoured washbasin with drawer & push-flush WC. Down-lighting, splash tiled & window to side.
OFFICE
3.05m x 2.44m (10'0" x 8'0")
Down-lighting & window to front.
SITTING ROOM
4.98m x 4.42m (16'4" x 14'6")
Juliet doors with glass screen overlooking Tunstall beck & grazing land beyond. Media point & down-lighting.
KITCHEN/DINING & DAY ROOM
8.08m x 4.03m (26'6" x 13'2")
A superb room overlooking Tunstall beck & grazing land beyond. Extensive range of soft-close, under-lit wall & floor units including rotary & larder units, pull-out recycle waste unit & breakfast bar; Consentino Quartz worktops with ceramic twin Belfast sinks & boiling tap. Integrated appliances include: ‘tower’ pyrolytic multifunction oven, combi microwave/compact oven & warming drawer, 5-zone ‘Bridging’ Induction hob with ‘Connect & Cook’ extractor, integrated 70-30 fridge/freezer & dishwasher. Media point, down-lighting & windows to front & rear.
UTILITY ROOM
2.25m x 1.75m (7'4" x 5'8")
Hot & cold feed connected, down-lighting & window to rear.
LOWER GROUND FLOOR
HALL
6.73m long & 3.37m wide max (22'0" long & 11'0" wi
Oak & glazed balustrade staircase with cupboard under.
STORE
1.53m x 1.53m (5'0" x 5'0")
Light point.
OFFICE/STORE
2.23m x 1.86m (7'3" x 6'1")
Plumbing connected.
PLANT ROOM
2.18m x 1.07m (7'1" x 3'6")
Hot-water cylinder & under-floor heating manifold.
BEDROOM 1 (VIEWS)
4.98m x 3.31m (16'4" x 10'10")
Double doors opening on to the rear patio overlooking Tunstall beck & grazing land beyond. Media point & down-lighting.
EN-SUITE
2.67m x 1.79m (8'9" x 5'10")
Tiled shower cubicle, Granite inset washbasin with cupboards & drawers, & Inset push-flush WC. Built-in cupboard, sensor-lit mirror, down-lighting, splash tiling & window to side.
EN-SUITE ROBES
1.65m x 1.65m (5'4" x 5'4")
Down-lighting & power socket.
BEDROOMS 2 & 3
BEDROOMS 2: (8.61m x 5.00m max [3.15m min] & BEDROOM 3: (6.24m max (4.90m min) x 4.06m) on UPPER FLOOR – See below.
BEDROOM 4 (VIEWS)
4.20m x 2.99m (13'9" x 9'9")
Media point & window to rear.
BEDROOM 5.
4.02m x 2.74m min (13'2" x 8'11" min)
Double doors opening on a 4.50m x 4.02m (14'9" x 13'2") enclosed & stone flagged side patio.
BATH/SHOWER ROOM
2.50m x 2.16m (8'2" x 7'1")
Inset bath with shower over with riser, washbasin with drawer & push-flush WC. Built-in cupboard, light-up mirror, down-lighting, splash tiling & window to side.
STORE ROOM etc
2.99m x 1.73m (9'9" x 5'8")
Door to rear.
UPPER FLOOR LANDING
Oak & glazed balustrade staircase, & 2 double-glazed Velux windows.
BEDROOM 2.
8.61m x 5.00m max (28'2" x 16'4" max)
A vast vaulted room (Ideal ANNEX, TEENAGERS/GUEST SUITE or GYM, WORKSPACE etc) Windows to front & rear, & 2 double-glazed Velux windows.
BEDROOM 3 (VIEWS)
6.24m max (4.90m min) x 4.07m (20'5" max (16'0" mi
Front & rear push-open eaves store cupboards & window to rear.
BATH/SHOWER ROOM
3.35m x 1.78m (10'11" x 5'10")
Shower area, Waters ‘overflow system’ bath, inset washbasin with cupboards & push-flush WC. Fully tiled, tiled nooks, down-lighting & double-glazed Velux window.
OUTSIDE
Multi-Car PARKING area for up to 9 cars with EV charging point & outside lighting. Galvanised steps to large side Granite-set PATIO area extending to a rear TERRACE. LAWN GARDEN with sleeper bed & metal estate fencing overlooking Tunstall beck & grazing land beyond. Outside lighting, power & cold-water taps.
NOTES
12m (39'4")
(1) ADDRESS: Silvercrest, Tunstall, Richmond, North Yorkshire, DL10 7QN
(1) Freehold
(2) Council Tax Band: TBA
(3) EPC: B-83
(4) Satellite Internet Service Connection Enabled
(5) Heating: Air Source Heat Pump with Underfloor Heating & Radiators
(6) Mains Electricity, Water & Drainage
(7) Some rooms have been 'CGi Dressed'
BUYER FLOOR COVERING CHOICES
Floor coverings: Karndean Knight Tile (Straight Lay & Herringbone)
Floor plan

Map

Take a look

Featured properties

About Marcus Alderson

If you’re looking to sell your home, we offer a fast, free and efficient market appraisal service. With well over 80 years experience in estate agency and extensive local knowledge, we pride ourselves on making honest and accurate market valuations, and we have the track record to prove it!

Contact

Sign up for our latest news

Copyright 2025 © Marcus Anderson Estate Agents | Design and Build by In Studio