7 King Street, Richmond, North Yorkshire, DL10 4HP

About the property
Gallery
Property details
EPC
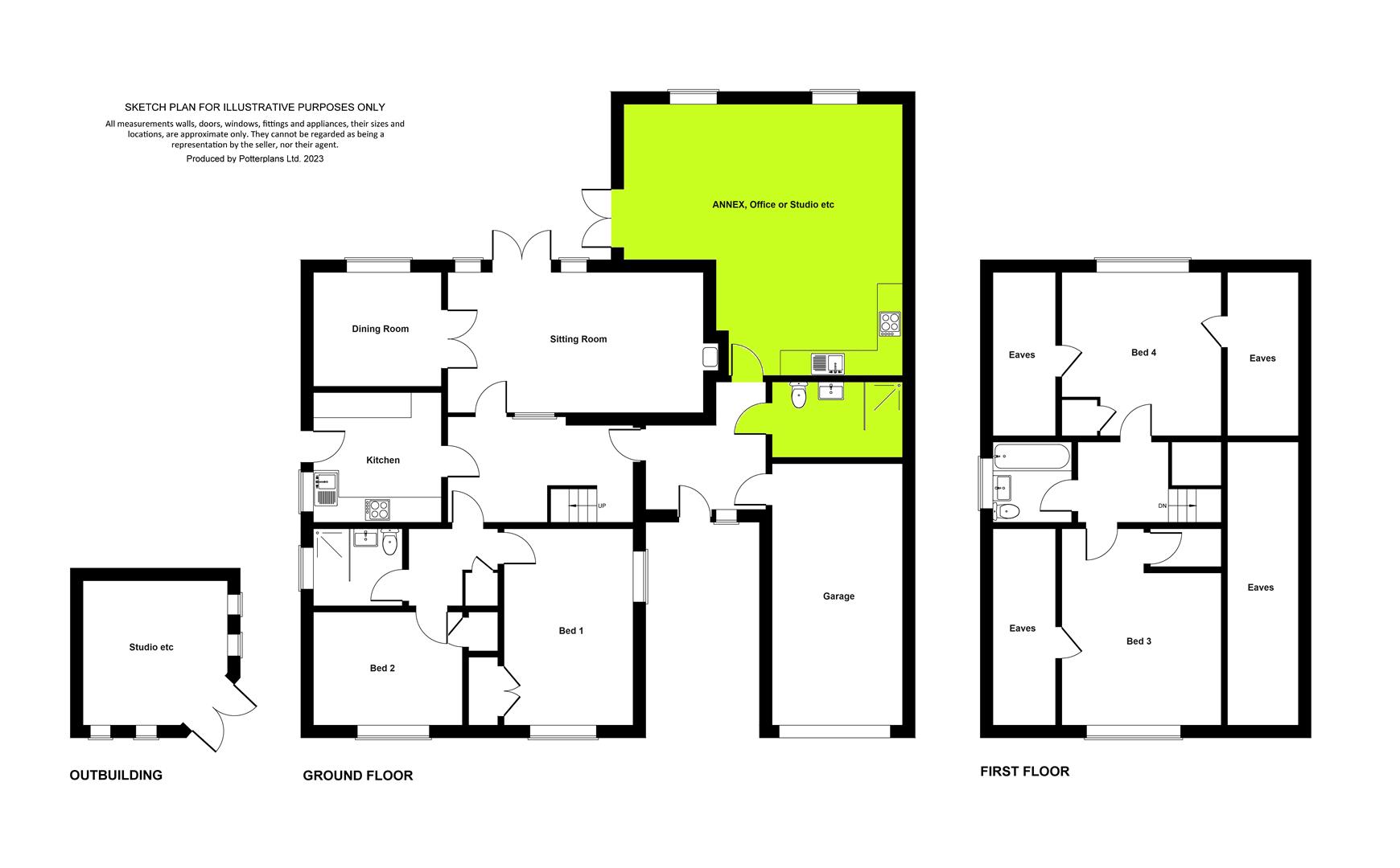
Floor plan
Map
St. Johns Park, Aldbrough St. John, Richmond
Aldbrough St. John Richmond
Offers over £ 585,000
House with Annexe.
4 3 3

Contact us

Contact our team

01748 822 711

Contact us

About the property
*** NEW PRICE *** A VERY DESIRABLE BUNGALOW & ANNEX: Detached 4 DOUBLE BEDROOM Home & integral 6.78m max x 6.01m/22'2" x 19'8" ANNEX (Living Area & Kitchen plus large Shower Room 1) suitable for several uses - about 172sqm/1,851sqft in all. Large Hall, Sitting Room, Kitchen & Dining Rooms (POTENTIAL for 5.86m x 3.05m/19'2" x 10'0" KITCHEN/DINING ROOM), 4 Double Bedrooms over 2 floors & 2 further Bath/Shower Rooms. Screened South-west Rear Garden with STUDIO/GYM etc. Lots of outside STORAGE with power. GARAGE & 4-Car PARKING. UPVC double-glazing & Oil Central Heating…..VERY STRONGLY RECOMMENDED.
GREAT Village: Aldbrough St John is one of the area’s most sought-after villages, noted for its large Greens bordered by Aldbrough Beck (village cricket ground, pleasant walks & play areas), the Stanwick Arms pub, Doctors Surgery, C of E Church & Bus Service. Excellent access A1(M) & A66 (Scotch Corner 5 miles), historic Richmond 7 miles & mainline British Rail Station 10 miles - LONDON Kings Cross about 2 hours 20 minutes.
Gallery
Full property details
Large HALL
3.11m x 2.20m (10'2" x 7'2")
An open space with UPVC double-glazed front door with side screen, access to ANNEX, Garage & door to:
INNER HALL
Staircase to first floor & high vaulted ceiling.
SITTING ROOM
6.07m x 3.47m (19'10" x 11'4" )
Recessed multi-fuel stove with timber mantel & brick surround. UPVC double-glazed patio doors with side screens to rear & double doors to:
DINING ROOM
3.05m x 2.71m (10'0" x 8'10")
UPVC double-glazed window to rear.
NB: POTENTIAL KITCHEN/DINING ROOM
5.86m x 3.05m (19'2" x 10'0")
KITCHEN
3.07m x 3.05m (10'0" x 10'0")
Oak wall & floor units with worktops & inset sink unit; integrated electric oven & ceramic hob with stainless steel & glazed extractor over, plumbing for washing machine & UPVC double-glazed window & door to side.
VESTIBULE
Built-in store cupboard.
BEDROOM 1.
4.63m x 3.06m (15'2" x 10'0")
Plus built-in double wardrobes & UPVC double-glazed windows to front & side.
BEDROOM 2.
3.56m x 2.71m (11'8" x 8'10")
Plus built-in wardrobe cupboard & UPVC double-glazed window to front.
SHOWER ROOM
2.14m x 1.83m (7'0" x 6'0")
Contemporary suite with glazed shower area, inset washbasin with cupboards under & WC. UPVC double-glazed window to side.
Ground-floor ANNEX
6.78m max x 6.01m (ex. shower room) (22'2" max x 1
KITCHEN AREA: Modern fitted kitchen (Wall & floor units with worktops & inset sink unit & integrated electric oven & ceramic hob with extractor over.
BED-SITTING AREA:
2 UPVC double-glazed windows to rear & UPVC double-glazed patio doors to side.
Annex SHOWER ROOM
2.60m x 1.80m (8'6" x 5'10")
Contemporary suite with glazed shower area, washbasin & WC.
Adjoining GARAGE
5.96m x 2.75m (19'6" x 9'0")
(See below)
FIRST FLOOR GALLERIED LANDING
BEDROOM 3.
4.64m x 3.82m plus eaves (15'2" x 12'6" plus eaves
Including walk-in Dressing Area with light point. Door to useful Eaves Storage & UPVC double-glazed window to front.
BEDROOM 4.
3.90m x 3.82m plus eaves (12'9" x 12'6" plus eaves
Built-in cupboard, doors to useful Eaves Storage Areas & UPVC double-glazed window to rear with fine countryside views.
BATHROOM
2.05m x 1.69m (6'8" x 5'6")
Panelled bath, washbasin & WC. UPVC double-glazed window to side.
OUTSIDE FRONT
Stone boundary wall & double-width 4-car drive, lawn with flower bed & Sitting Area. Side gate to rear.
Integral GARAGE
5.96m x 2.75m (19'6" x 9'0")
Electric up & over door, strip-lighting & power. Grant oil boiler (New January 2019) & hot-water cylinder. Door to Hall.
Enclosed South-west REAR GARDENS
The enclosed gardens include a 3.47m x 3.45m/11'4" x 11'3" SUMMER HOUSE/STUDIO/GYM etc with light, power & double-glazed windows & doors. Large flagged patio & lawn with flower/shrub borders, cold water tap & outside light point, 4 STORE SHEDS with double doors & outside power socket.
NOTES
(1)Freehold
(2)Council Tax band: E
(3)EPC: D-64
Energy performance certificates
Floor plan

Map

Take a look

Featured properties

About Marcus Alderson

If you’re looking to sell your home, we offer a fast, free and efficient market appraisal service. With well over 80 years experience in estate agency and extensive local knowledge, we pride ourselves on making honest and accurate market valuations, and we have the track record to prove it!

Contact

Sign up for our latest news

Copyright 2025 © Marcus Anderson Estate Agents | Design and Build by In Studio