

Take a look
House - Detached. |
Gallowfields Road, Richmond |
Richmond 4 |
£ 370,000 |
For Sale |
House - End Terrace. |
Earl Edwin Drive, Richmond |
Richmond 3 1 |
Offers over £ 200,000 |
For Sale |
Character Property - Semi Detached. |
Hackforth, Bedale |
Bedale 3 1 3 |
£ 495,000 |
For Sale |
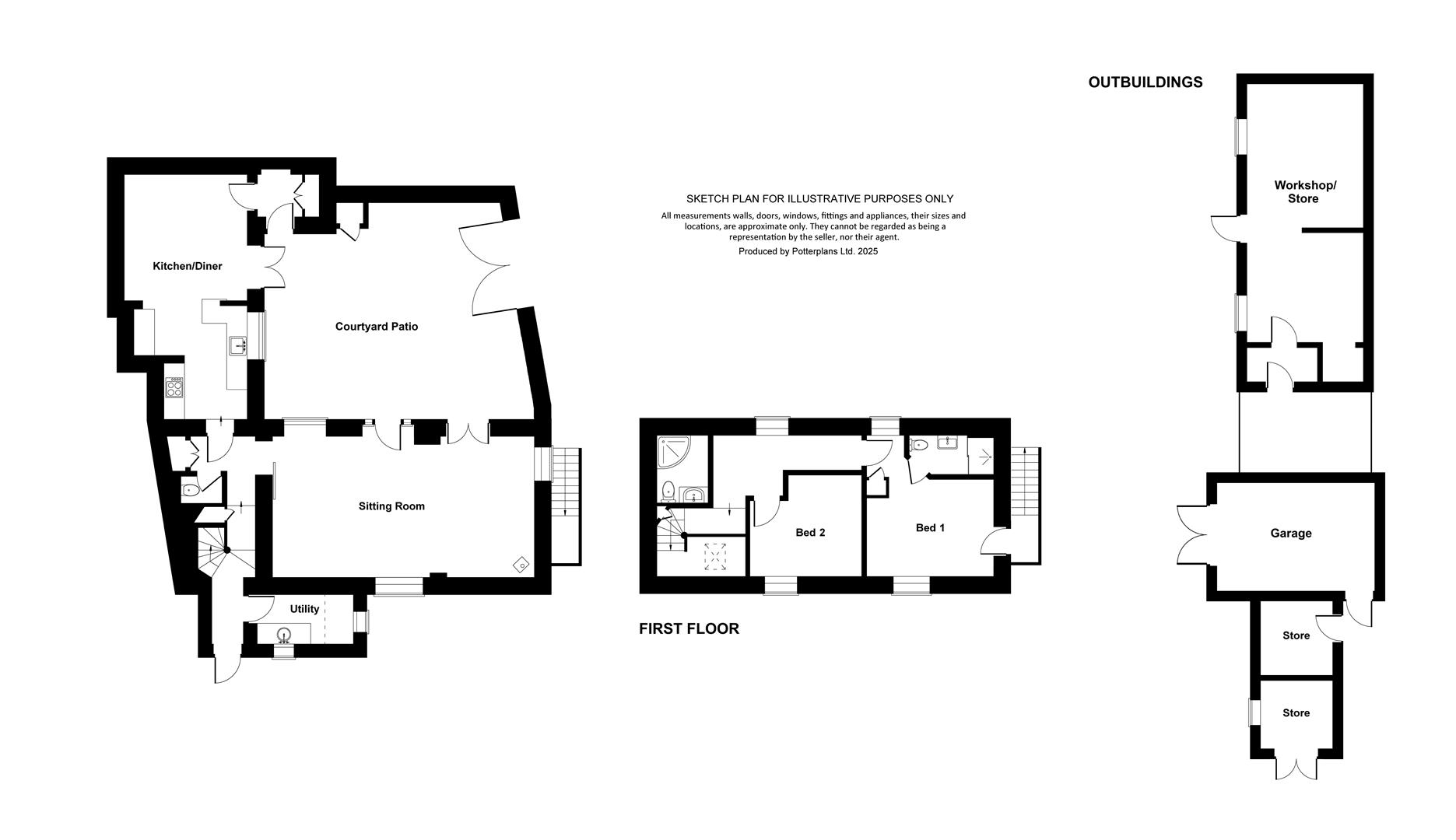
Character Property. |
Frenchgate, Richmond |
Richmond 5 2 3 |
Asking price £ 499,950 |
For Sale |
About Marcus Alderson
If you’re looking to sell your home, we offer a fast, free and efficient market appraisal service. With well over 80 years experience in estate agency and extensive local knowledge, we pride ourselves on making honest and accurate market valuations, and we have the track record to prove it!
Contact
Sign up for our latest news
Navigation
Copyright 2025 © Marcus Anderson Estate Agents | Design and Build by In Studio