7 King Street, Richmond, North Yorkshire, DL10 4HP

About the property
Gallery
Property details
EPC
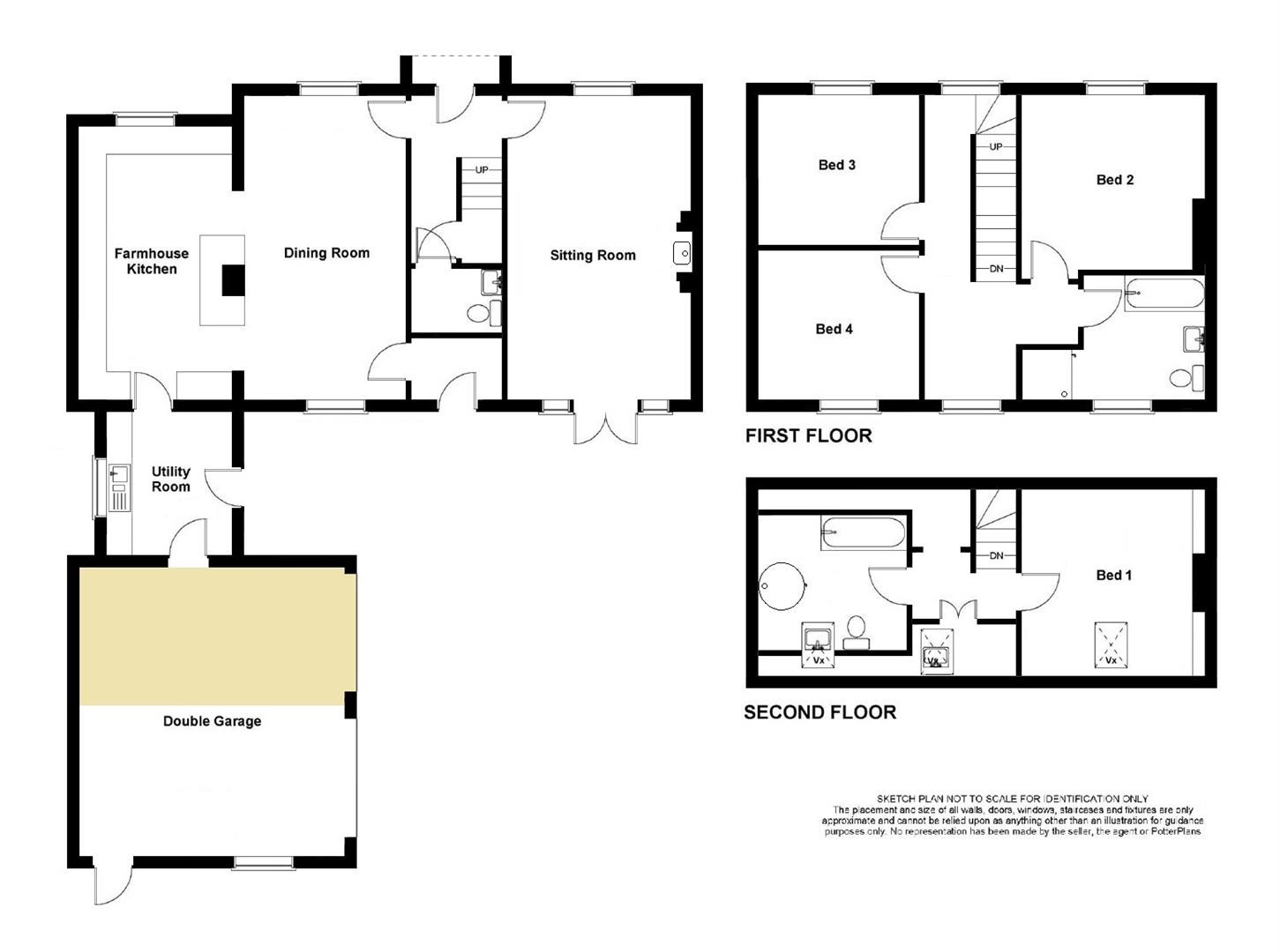
Floor plan
Map
16a Richmond Road, Brompton On Swale, Richmond
Brompton On Swale
£ 1,500
House - Detached.
4 2 1

Contact us

Contact our team

01748 822 711

Contact us

About the property
A VERY DESIRABLE FAMILY HOME with immediate occupancy - Fabulous 6.41m x 6.26m max/21'0" x 20'6" vaulted Farmhouse Kitchen, Dining & Dayroom, large Sitting Room with multi-fuel stove, Utility & Washroom/WC. Adjoining Garage (Scope to create an Office, Studio or Gym etc). 4 double Bedrooms, Bath/Shower Room & En Suite Bath/Shower Room. Enclosed Gardens & Parking. Ground floor under-floor heating (Radiators to upper floors), Gas Central Heating & Double-glazing.
Gallery
Full property details
PORCH
RECEPTION HALL
Staircase to first floor & useful under stairs cupboard.
WASHROOM/WC
1.86m x 1.32m (6'1" x 4'3")
Washbasin & WC.
SITTING ROOM
6.24m x 3.71m (20'5" x 12'2")
A sizeable room with heavy Oak beams & fireplace with multi-fuel stove. Double-glazed window to front & double-glazed French doors with side screens opening onto the rear flagged patio.
REAR HALL
1.86m x 1.27m (6'1" x 4'1")
Door to outside.
FARMHOUSE KITCHEN/DINING & DAYROOM
6.41m x 6.26m max (21'0" x 20'6" max)
Comprising of:
DINING & DAYROOM
Heavy Oak beams, double-glazed windows to front & rear, & open to:
FARMHOUSE KITCHEN
Eye-catching Oak beamed, high-vaulted ceiling with a large central Oak pillar & surrounding island. The kitchen is fitted with an extensive range of ‘soft-close’ wall & floor units with woodblock worktops & ceramic 1 & ½ bowl sink unit Range cooker space, integrated fridge, freezer & plumbing for dishwasher. Double-glazed window to front & door to:
UTLITY ROOM
2.95m x 2.54m (9'8" x 8'3")
Fitted with wall & floor units with worktops with 1 & ½ bowl sink unit with plumbing for washing machine under. Double-glazed window to side & doors to outside &:
Adjoining DOUBLE GARAGE
5.88m x 5.46m (19'3" x 17'10")
(Scope to create an Office, Studio or Gym etc., subject to planning - See floor plan).
FIRST FLOOR LANDING
Staircase to upper floor & double-glazed windows to front & rear.
Double BEDROOM 2.
3.68m x 3.58m (12'0" x 11'8")
Double-glazed window to front.
Double BEDROOM 3.
3.11m x 3.07m (10'2" x 10'0")
Double-glazed window to front.
Double BEDROOM 4.
3.11m x 3.06m (10'2" x 10'0")
Double-glazed window to rear with views.
BATH/SHOWER ROOM
3.70m (max) 2.67m x 2.55m (12'1" (max) 8'9" x 8'4"
A sizeable room with panelled bath, separate shower cubicle, washbasin & WC. Karndean flooring & double-glazed window to rear with views.
UPPER LANDING
2 useful storage cupboards with light points.
Double BEDROOM 1.
3.98m x (3.26m min) 3.73m max (13'0" x (10'8" min)
Twin recessed chimney ledges & double-glazed Velux window to rear with views.
(En Suite) BATH/SHOWER ROOM
3.08m x 2.62m (10'1" x 8'7")
A good sized room with panelled bath, separate shower cubicle, washbasin & WC. Karndean flooring & double-glazed Velux window to rear with views.
OUTSIDE
Attractive stone boundary wall with hedging & lawned garden. Side gate & rear vehicular gates to:
REAR
Gravelled parking area fronting the double garage. Stone flagged patio area, cold water tap & outside lighting, rear lawn, further flagged patio & Raspberry bed.
Adjoining DOUBLE GARAGE
5.88m x 5.46m (19'3" x 17'10")
(Scope to create an Office, Studio or Gym etc., subject to planning - See floor plan). Twin up & over electric doors, double-glazed window & door to rear. Strip lighting & 4 double power sockets. Cupboard housing CR Remeha Gas boiler & Stelflow RM cylinder for hot water, under floor & radiator heating.
NOTES
(1)Freehold
(2)EPC: 77-C
(3)Council Tax Band: F
(4)Mains Gas, Water, Electricity & Drainage
Energy performance certificates
Floor plan

Map

Take a look

Featured properties

About Marcus Alderson

If you’re looking to sell your home, we offer a fast, free and efficient market appraisal service. With well over 80 years experience in estate agency and extensive local knowledge, we pride ourselves on making honest and accurate market valuations, and we have the track record to prove it!

Contact

Sign up for our latest news

Copyright 2025 © Marcus Anderson Estate Agents | Design and Build by In Studio